













Proyecto para reforma completa de vivienda en Lekeitio. Nueva distribución.
Nos encontramos con un piso de 2 dormitorios, salón, cocina de grandes dimensiones y baño.
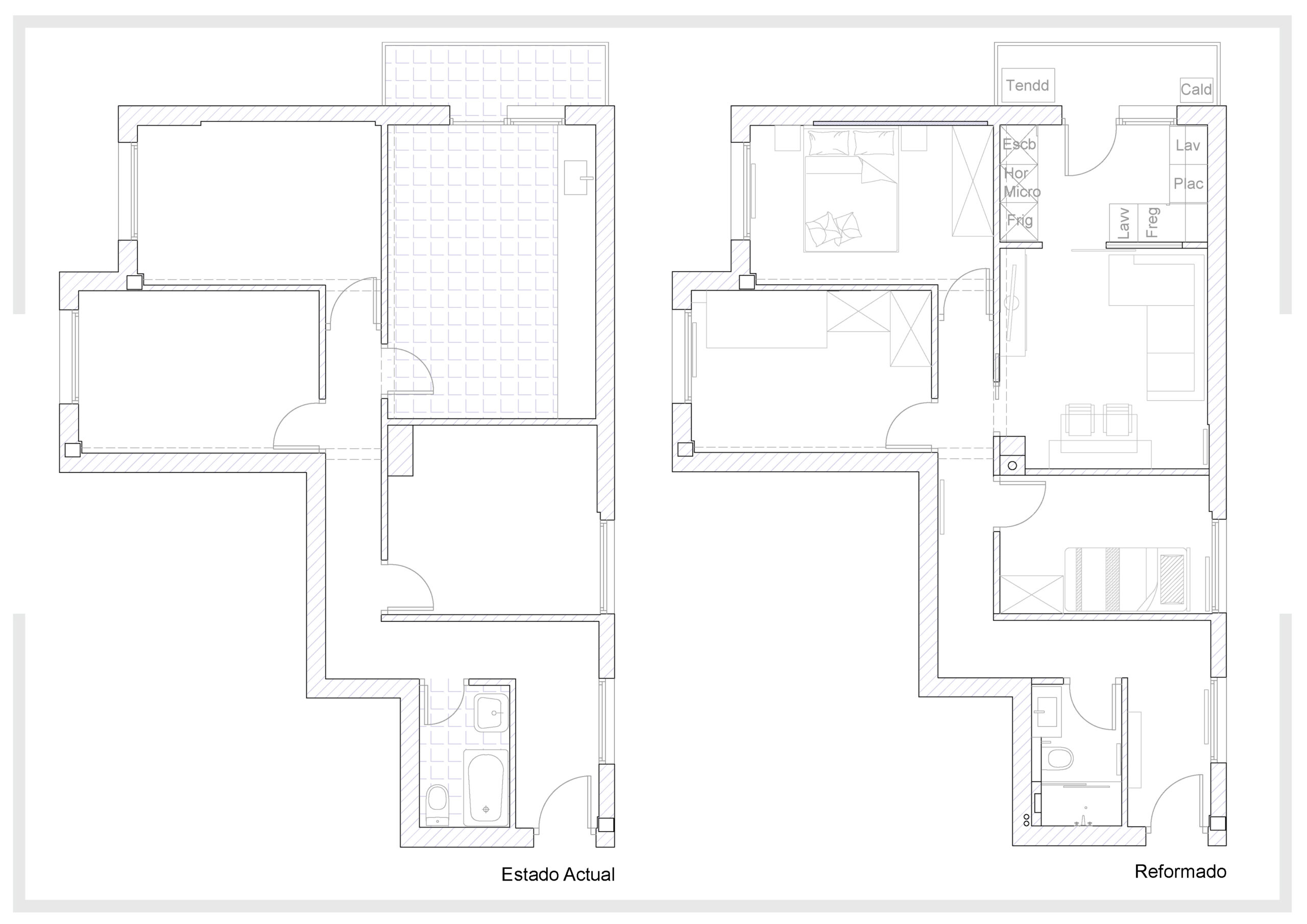
La necesidad en esta segunda residencia era sacar una tercera habitación para los propietarios.
Aprovechando la gran cocina actual y reduciendo una de las habitaciones, se realiza una pequeña cocina suficiente para temporadas en la vivienda incluso el día a día, abierta al salón de la vivienda.
Quedando así tres dormitorios cómodos.
En el baño se modifica la entrada y la distribución por completo para aprovechar al máximo el espacio con un gran plato de ducha, inodoro suspendido y mueble de baño. La baldosa seleccionada para paredes de este baño queda perfecta, no solo por el color y textura con la luminosidad y calidez que aporta, si no también por los perfectos remates que permite en los cantos, aportando limpieza sin necesidad de instalar cantoneras.
Se realiza reforma completa de instalaciones, suelo, ventanas, enlucido de paredes, carpintería etc…esta vivienda queda preparada para muchísimos años con gran tranquilidad, además dispone de fachada ventilada nueva recién cambiada. Sus propietarios disfrutaran de la vivienda por muchísimos años.